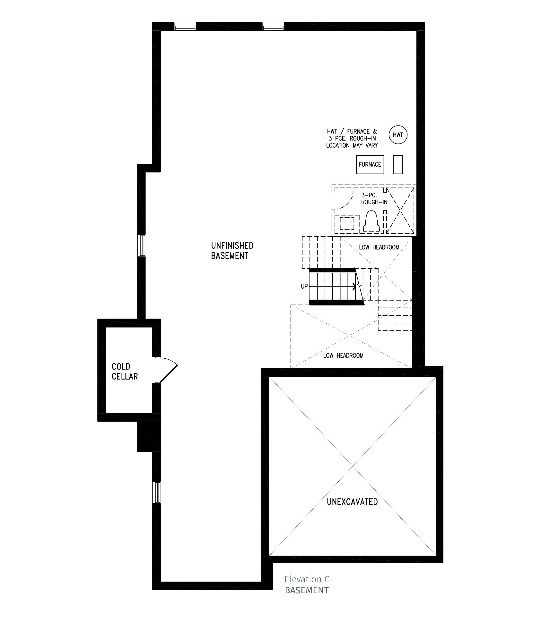
Ascot Corner C

< class="bh-font-primary lg-text-size" style="color: #000000; "> Floorplans


Prices and specifications are subject to change without notice. Renderings are artists’ concept. E. & O. E. I Copyright © 2021 InDesign Homes.  Privacy Policy